Concept sketch from catoe/brown architecture

HOUSING PROJECT

Housing Project - Stay up to date:

Background information:

In Autumn 2025, we carried out a community-wide Housing Needs Survey to help build an evidence base for future housing in Ardgour.

Number of responses: 35 households, and 7 businesses

The survey highlighted a clear need for a mix of housing types, including homes for local families, people working in the area, and those looking to downsize.

The findings are now informing feasibility work and early design planning for Clovullin.

View the full survey results here.

February Update

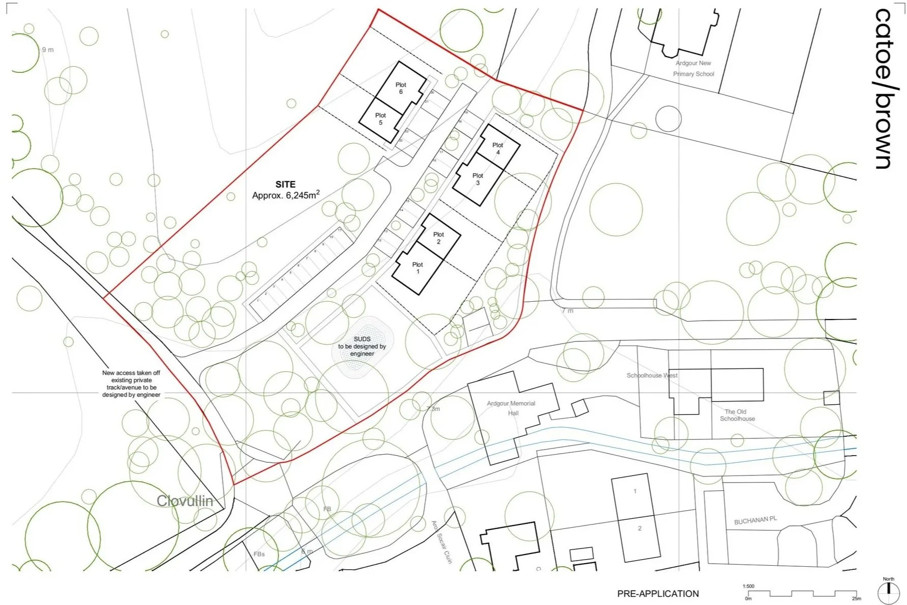
An outline planning application has now been submitted to The Highland Council for the proposed housing development at Clovullin.

This marks an important milestone for the project and allows the principle of development and overall layout to be considered.

You can view the submitted Outline Planning Design Statement and Proposed Plans. We will continue to share updates as the application progresses.

January Update

On Thursday 22nd January, 7pm, we held a community meeting in Ardgour Memorial Hall to share an update on the Ardgour Housing Project and to look in more detail at emerging proposals for housing at Clovullin.

This meeting was an opportunity to see the proposed layout, hear from our architects, ask questions, and feed into the next stage of the project.

View the minutes below: